On cars, old, new and future; science & technology; vintage airplanes, computer flight simulation of them; Sherlockiana; our English language; travel; and other stuff
YESTERDAY, WE HAD Horatio Barber’s Valkyrie demonstrating its short take-off capability by charging directly at admiring crowds. Today in Part 2, the Valkyrie continues to entertain, becomes the world’s first air transport (of sorts), and provides me with a fine GMax project.
On the Valkyrie’s Crowd-Pleasing. Kenneth Munson wrote in his Pioneer Aircraft 1903-1914 – The Pocket Encyclopaedia of World Aircraft in Color, “In 1911 Barber carried 151 passengers in his Valkyries without incident, and altogether flew more than 7000 miles during the year.”
“On 4 July 1911, Barber created a little piece of history by flying from Shoreham to Hove with the first item of freight ever sent by air: a carton of Osram electric light bulbs. He donated the £100 that he received to the Royal Aero Club….”
Barber Heritage. Despite these successes, by April 1912 Barber considered the syndicate a commercial failure and sold its assets to Frederick Handley Page, who went on to become known as the father of the heavy bomber.
From Munson on the matter: “Of this, Dallas Brett dryly commented that Barber ‘ought to have known better.’ ”
Barber continued in the aviation business as a consultant and occasional innovator: For example, Lloyd’s of London allowed him to devise terms protecting himself from liability with the first aircraft insurance policy.
Barber served in Royal Flying Corps, later the Royal Air Force in World War I. He was a flying instructor and later published books on flight training and aerobatics. He also had continued involvement in aviation insurance.
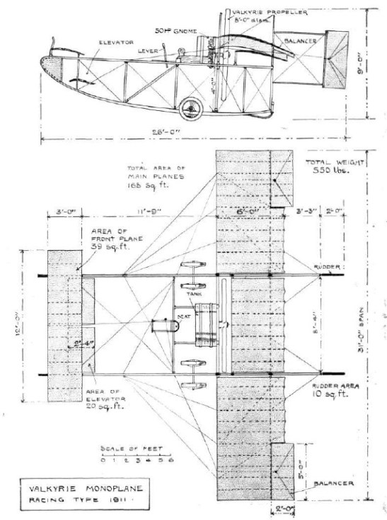
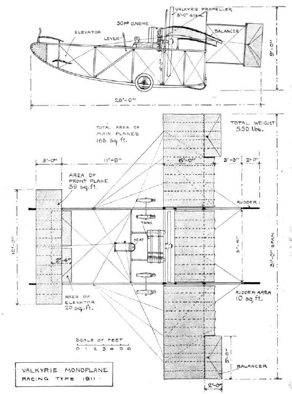
The Valkyrie Racer. I chose the Racer as my Valkyrie GMax project. It and subsequent Barber designs differed from the Valkyrie I because of their dual rudders extended aft to enhance effectiveness.
Other Valkyries were powered by a 35-hp Green water-cooled inline-4. The Racer had a 50-hp Gnome air-cooled rotary (the crankshaft of which was fixed, its engine rotating with the prop). All Valkyries were pusher layouts, with powerplant immediately aft of the seating.
There’s excellent Internet documentation of the Gnome rotary, including a drawing that shows its carburetor and oil pump.

Above, this sectional drawing is for a tractor-mounted Gnome, thus needing reversal for the Valkyrie pusher. Below, my Valkyrie Racer’s pusher Gnome.
Also, the drawing shows the engine’s pressure-gauge bulb instrumentation. Microsoft Flight Simulation aircraft builders have graphically simulated bulbs of this sort to include in model cockpit panels.
Cockpit? What’s a cockpit? A Valkyrie doesn’t need such a sissy feature. ds
© Dennis Simanaitis, SimanaitisSays.com, 2019
This site uses Akismet to reduce spam. Learn how your comment data is processed.
Reblogged this on Horatio Claude Barber and commented:
Barber created quite the stir when he unveiled his Valkyrie “canard” style aeroplane. Dennis Simanaitis has written a two part article about Horatio Barber’s Valkyrie. – this link take you to part 2
My cousin Edith Meeze was the female pilot in several 1911 Valkyrie photos in my possession. She also travelled to Shoreham with Barber when he made his first commercial flight.